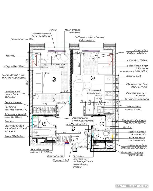
Дизайнер интерьера с большим опытом. Выявив Ваши потребности, разработаю функциональный, уютный и красивый интерьер для Вашей квартиры или дома, продумаю удобную расстановку мебели. Посоветую материалы в соответствии с бюджетом. Выполняю замеры, технические чертежи (световое оформление, планы напольных покрытий, планы возводимых и сносимых перегородок и т.д), визуализацию проекта, эскизы для просчета мебели. ТЕХНИЧЕСКИЙ ПРОЕКТ (ЧЕРТЕЖИ) для ремонтной бригады с перегородками, расстановкой мебели, проходами, сантехникой и всей электрикой (розетки, выключатели, светильники) - 15 р. за м.кв. (метры по полу). Стоимость будет зависеть от прорабатываемой площади. Чем больше площадь объекта, тем дешевле стоимость за м.кв. Кухня в формате 3d в подарок для хозяйки. ПРОЕКТ С КРАСИВЫМИ КАРТИНКАМИ (ВИЗУАЛИЗАЦИЯМИ) - 40р.за м.кв. (метры по полу). Визуализации делаются в программе 3DMax, получаются очень фотореалистичными. Пишите/звоните, обсудим, договоримся! Найти своего дизайнера, который бы Вас слышал-это фундамент спокойного и конструктивного ремонта в Вашем помещении. Работаю качественно, высылаю промежуточные варианты, по мере выполнения, все обсуждаем, иду за пожеланиями заказчика. Всегда на связи до окончания ремонта, если нужно посоветоваться! Мои работы можно посмотреть в инстаграм, просто набрав Алина Серпова. Прямая ссылка... https://www.instagram.com/alinaserpova_3d_design/.
Технический проект при быстром согласовании с заказчиком сделаю в течении недели.







