ГП «УКС Советского района г.Минска» приглашает принять участие в долевом строительстве встроенных помещений в жилом доме ул. Восточная 166 в г.Минске.
Близость к центру города позволяет удобно добираться сюда как жителям спальных районов, так и тем, кто работает в самом центре. Наличие удобного транспортного сообщения — остановки автобусов, трамваев и маршруток, а также оживленной пешеходной зоны — значительно повышает проходимость и видимость коммерческого помещения. Прекрасное предложение для тех, кто ищет коммерческое помещение в комфортном районе столицы! Удобное расположение, развитая инфраструктура и возможность приобретения в рассрочку в белорусских рублях делают этот объект особенно привлекательным.
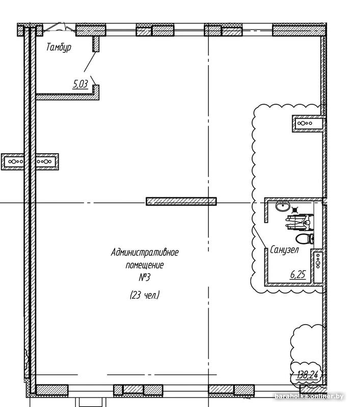
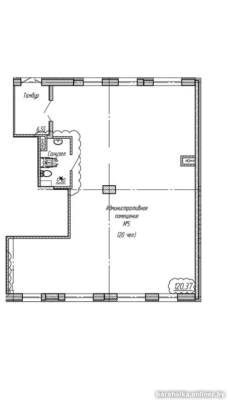
Для заключения договоров предлагаются 4 встроенных помещения с изолированными наружными входами:
- административное помещение № 2, 66,05 кв.м.
- административное помещение № 3, 149,52 кв.м.,
- административно-торговое помещение № 4, 99,91 кв.м.;
- административное помещение № 5, 132,22 кв.м.
Стоимость 1 м² встроенных помещений № 2, №





4 составляет 5 200 белорусских рублей. Стоимость 1 м² встроенных помещений № 3, № 5 составляет 5 000 белорусских рублей.
Первоначальный взнос 20% и оставшаяся сумма с рассрочкой платежа до мая 2026 года (включительно).