


ВАРИАНТ 1: Прямая покупка коммерческих помещений
ИНВЕСТИЦИОННОЕ ПРЕДЛОЖЕНИЕ
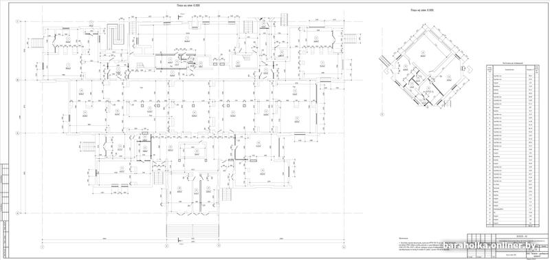
Объект: Строящийся торговый объект, г. Жлобин.
Суть предложения: Прямая продажа коммерческих помещений в строящемся объекте по цене ниже рыночной с целью привлечения якорного инвестора.
1. Описание объекта и проекта:
• Стадия: Строительство, проект прошел экспертизу.
• Готовность: Возможность выбора и бронирования наиболее ликвидных помещений на этапе строительства.
• Локация: Перспективная локация в спальном районе с растущей покупательной способностью.
2. Инвестиционное предложение:
• Общий объем инвестиций: до 250 000 USD.
• Предлагаемые лоты:
o Пакет "Старт": 4 помещений общей площадью 128, 112, 128, 132м². Суммарная площадь: 500 м².
o Цена на этапе строительства: 300 USD/м².
o Общая стоимость пакета: 500 м² * 300 USD/м² = 150 000 USD.
• Рыночная стоимость после ввода в эксплуатацию: от 600 USD/м².
3. Выгода и потенциальный доход:
• Мгновенный дисконт к рыночной стоимости: 40%.
• Доходность от аренды: После ввода объекта в эксплуатацию, инвестор может сдавать помещения в аренду по ставке 6-14 USD/м²/мес.
• Прогнозный арендный доход с пакета: 500 м² * 10 USD/м² = 5000 USD/мес.
• Потенциал перепродажи: После завершения строительства и заполнения объекта арендаторами, стоимость помещений возрастет. Цель перепродажи через 2-3 года: 900-1100 USD/м².
4. Гарантии:
• Проект прошел государственную экспертизу.
• Оформление права собственности на каждое помещение по завершении строительства.
• Юридическое сопровождение сделки.
5. Идеально для:
• Инвесторов, желающих получить в собственность ликвидные коммерческие активы.
• Бизнесменов, планирующих разместить собственный бизнес (например, аптеку, салон услуг) в перспективном месте.
ВАРИАНТ 2: Покупка доли в ООО
ИНВЕСТИЦИОННОЕ ПРЕДЛОЖЕНИЕ
Объект: Строящийся торговый объект, г. Жлобин, общая площадь 1831 м²
Суть предложения: Приобретение доли в уставном капитале ООО-владельца объекта с целью завершения строительства и последующего получения прибыли от аренды или продажи объекта.
1. Описание объекта и проекта:
• Стадия: Строительство, проект прошел экспертизу.
• Планировка: Объект предварительно разделен на 6 арендных блоков (128, 105, 128, 132, 155 и 1295 м²).
• Локация: Спальный район г. Жлобина с высоким пешеходным трафиком (в радиусе 200 м расположено 52 подъезда в 9-этажных домах).
• Ключевое преимущество: Отсутствие аналогичных современных торговых площадей в непосредственной близости.
2. Инвестиционное предложение:
• Требуемый объем инвестиций: 250 000 USD.
• Оценочная стоимость проекта (post-money): ~625 000 USD.
• Предлагаемая доля в ООО: 40% от уставного капитала и прибыли.
• Цель инвестиций: Завершение финальных этапов строительства и отделки для начала эксплуатации.
3. План доходности и выход:
• Основной источник дохода: Арендные платежи.
• Прогнозный чистый операционный доход (NOI): якорный арендатор от 9 500 USD/мес., сдача остальных объектов в субаренду 5 200USD/мес.
• Доля инвестора в доходе: 40% от чистой прибыли (ежеквартальные выплаты).
• Стратегия выхода (через 5-7 лет):
1. Продажа объекта. Прогнозная стоимость продажи: ~1 250 000 USD. Доход инвестора: ~250 000 USD.
2. Выкуп доли другими участниками ООО по оценочной стоимости.
4. Гарантии и риски:
• Гарантии: Проектная документация прошла государственную экспертизу. Прозрачная структура ООО.
• Риски: Рыночные колебания арендных ставок, риски задержки строительства. Риски минимизированы наличием разрешительной документации.
Контакты для обсуждения:
Александр: +375-29-132-00-60